Allgemeiner Hochbau


Als klassisches Statikbüro erstellen wir schwerpunktmäßig Statische Berechnungen und Ausführungspläne für alle üblichen Baumaßnahmen im Wohn- und Gewerbebau. Gerne analysieren wir zusammen mit Ihnen die Machbarkeit Ihres Bauvorhabens und stehen Ihnen auch während der gesamten Umsetzungsphase zur Seite: von der Fachplanung und Baugenehmigung bis zur Bauüberwachung auf der Baustelle.

Im Bereich Hochbau betreuen wir Bauvorhaben jeglicher Bauweise (Holzbau, Massivbau, Stahl- und Aluminiumbau) und Größe:


Bei jedem Bauvorhaben sind die erforderlichen planerischen Leistungen individuell festzulegen. Hinausgehend über die rein statisch-konstruktive Bearbeitung erbringen wir regelmäßig folgende Leistungen:

 

Konstruktiver Ingenieurbau


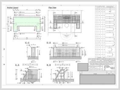
Wir übernehmen für Sie die Tragwerks- und Ausführungsplanung von Ingenieurbauwerken, insbesondere in See- und Binnenhäfen des norddeutschen Raums. Als Teil Ihres Planerteams überprüfen und optimieren wir Ihre Baumaßnahme in statisch-konstruktiver Hinsicht. Umfassende Erfahrung besitzen wir bei Neubau, Umbau und Sanierung von Kaianlagen.

 

Bauvorlageberechtigung und Prüfbefreiung
Eintragungen in die Liste der bauvorlageberechtigten Ingenieure
der Architekten- und Ingenieurkammer Schleswig-Holstein, vgl. LBO-SH §65 Abs. 3, Satz 2.

und in die Liste der von der Prüfung der bautechnischen Nachweise befreiten Ingenieure
der Architekten- und Ingenieurkammer Schleswig-Holstein, vgl. LBO-SH §70 Abs. 2 liegen vor.

Die genannten Eintragungen werden regelmäßig in allen Bundesländern anerkannt.